Hopp til hovedinnhold
1 / 0

Nye eneboliger på populære Skarbekken

Fullshammersvingen 4100 Jørpeland
Pris fra
6 490 000 kr
Omkostninger
161 863 kr
Totalpris
6 651 863 kr
Oddvar Østrem
Selger
Prosjektet bygges av

Ryfylke Trelast AS

Dine drømmer er vår grunn til å gå på jobben hver morgen. Det kan være et nytt hus til mange millioner. En ny garasje. En flott hytte på fjellet. En terrasse. Et tilbygg. En etterlengtet reparasjon av taket eller etterisolering før vinteren melder sin ankomst. Uansett hva vi leverer så er vi en del av en verdikjede som til slutt gjør at en drøm blir virkelig. Din drøm.

Gå til forhandlersiden

Prosjektfase

2025
Planlegging
2025
Salgsstart
2026
Byggestart
2026/2027
Overtakelse

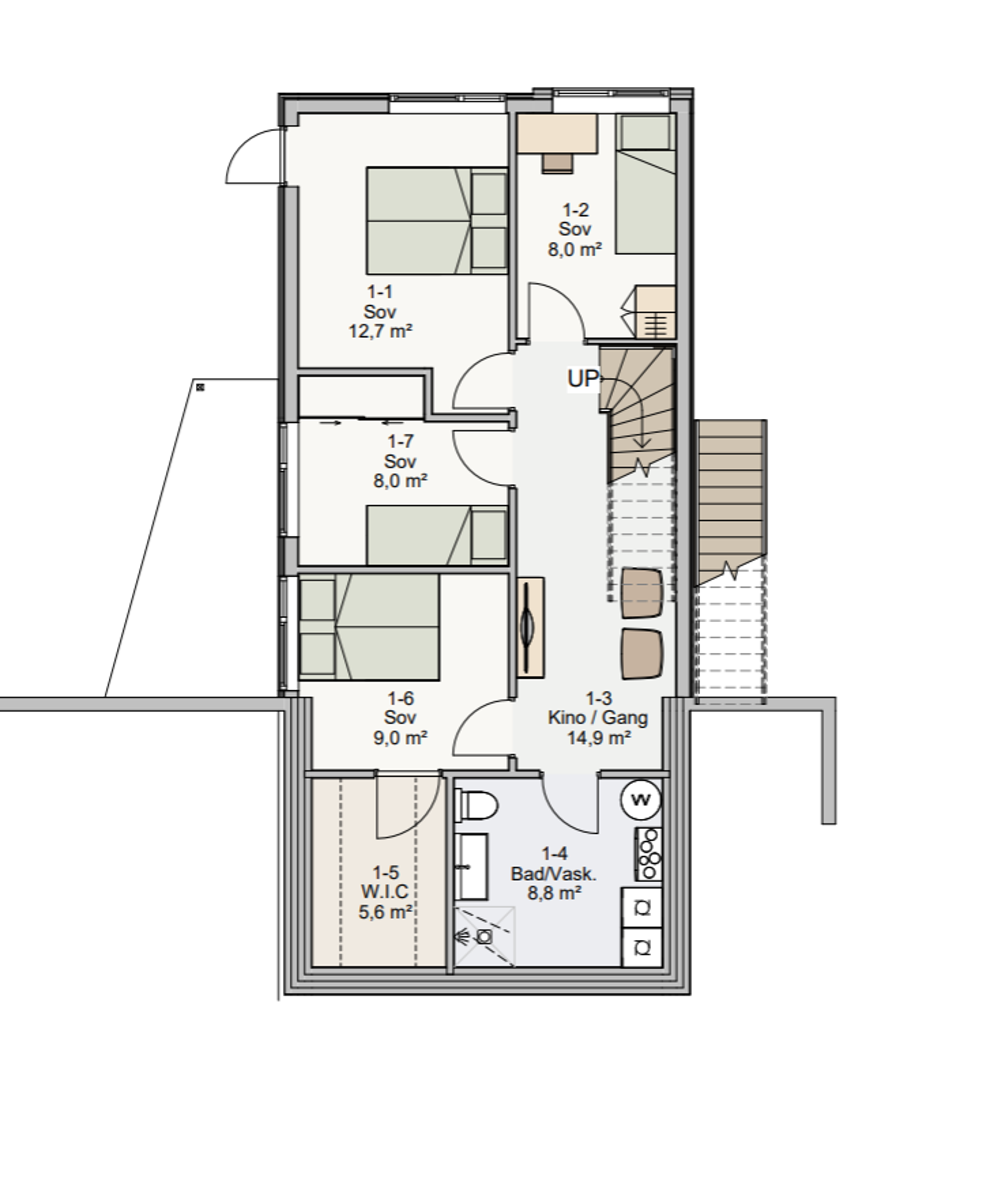
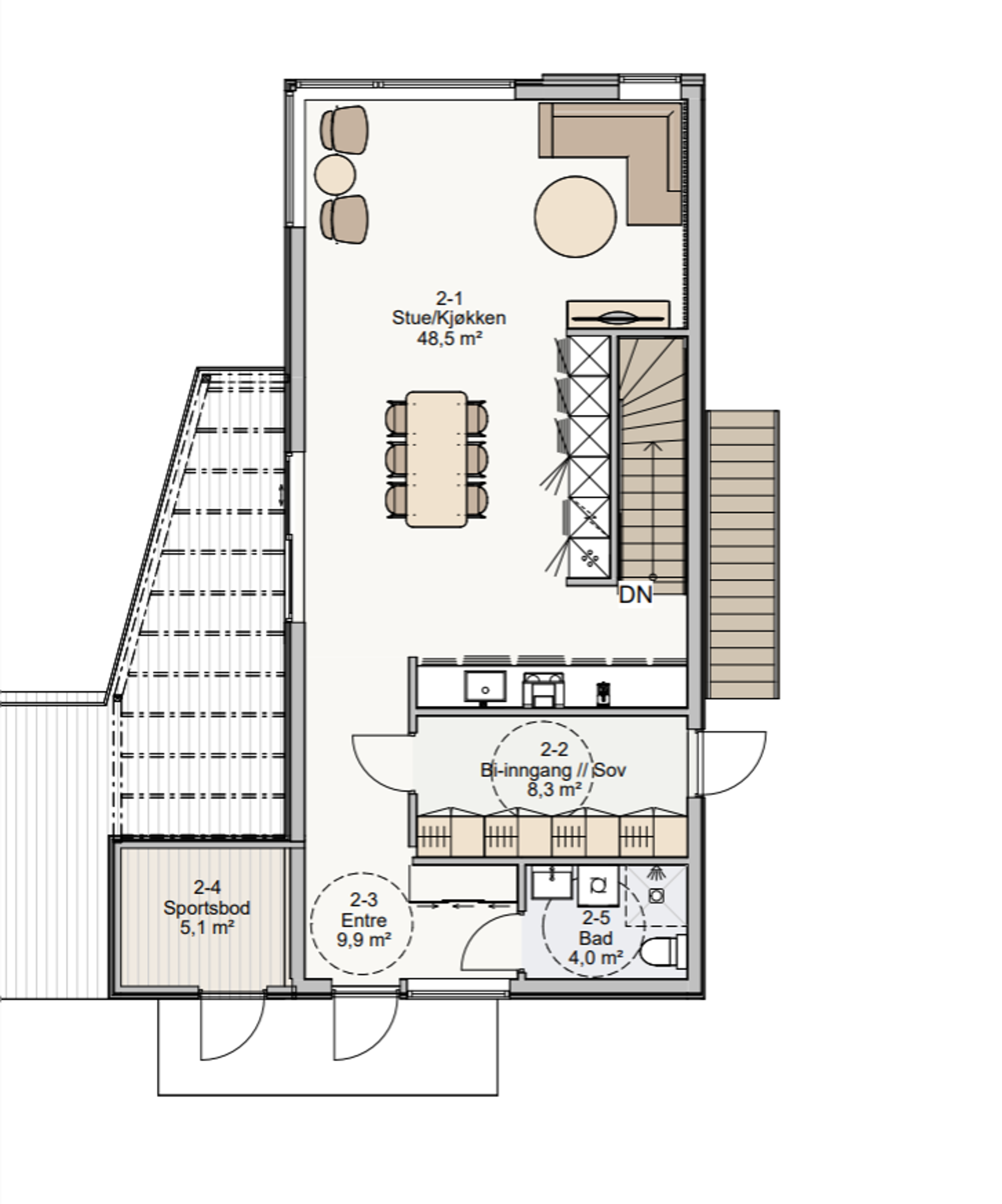
Nøkkelinfo

Boligtype

Enebolig

Eierform

Selveier

Soverom

4

Bad

1

Etasjer

2

Bruksareal

148 m² (BRA)

Tomteareal

347

Internt bruksareal

142 m² (BRA-i)

Eksternt bruksareal

5 m² (BRA-e)

Fasiliteter

  • Garasje/P-plass
  • Bilvei frem
  • Innlagt strøm
  • Innlagt vann

Eneboligen er tilpasset familieliv, med praktiske planløsninger og gode uteområder. Beliggenheten i Skarbekken gir nærhet til natur og trygge omgivelser, samtidig som servicetilbudene er lett tilgjengelige. Boligene er planlagt med fokus på komfort, lys og en enkel hverdag.

PRIS OG OMKOSTNINGER

Pris: 6 490 000,- + omkostninger.

Maler/gulvpakke koster kr. 350 000,- om en ikke ønsker å gjøre dette selv. Totalt for "nøkkelferdig" bolig er 6 840 000,- + omkostninger.

I tillegg til kjøpesum kommer det følgende omkostninger

  • Dokumentavgift 2,5% av tomteverdi: 23 125,-
  • Tingslysningsgebyr skjøte: 585,-
  • Tinglysningsbegyr panteobligasjon: 585,-
  • Rekkefølgekrav Strand Kommune kr. 137 568,- (indeksreguleres årlig)

Totale omkostninger: 161 863,-


Det tas forbehold om endring av satsene for offentlige gebyrer og avgifter i tiden frem til hjemmelsovergang finner sted.

INTERESSERT?

Meld din interesse eller ring oss om du har spørsmål.

Plantegninger

Andre enheter til salgs i Fullshammersvingen 2 og 4

Bolig 2412148 355 6 790 000 kr
Bolig 4412148 347 6 490 000 kr

Meld interesse

Felter markert med * må fylles ut.

Din kontaktinformasjon

+47

Ved å sende inn skjema opprettes det en brukerprofil på systemhus.no, og dine opplysninger lagres i vår digitale løsning. Utfyllende informasjon om behandlingen og hvordan du kan slette din profil finner du i vår personvernerklæring. Systemhus vil sende deg nyhetsbrev basert på ditt kundeforhold hos oss. Dersom du ønsker å reservere deg mot nyhetsbrev, gjør du det enkelt ved å krysse av nedenfor.