Lofotr Bygg & Anlegg AS
Lofotr Bygg & Anlegg er Systemhusforhandler i Vest-Lofoten. Bedriften har forretningsområde innen utvikling og bygging av småhus, eneboliger, boliger med to eller flere leiligheter.
Gå til forhandlersidenLofotr Bygg & Anlegg er Systemhusforhandler i Vest-Lofoten. Bedriften har forretningsområde innen utvikling og bygging av småhus, eneboliger, boliger med to eller flere leiligheter.
Gå til forhandlersidenBallstad - Sentral beliggenhet med kort vei til barne- og ungdomsskole.
På Gjerneshaugan har vi tre flotte eneboliger av hustypen Fedje under oppføring.
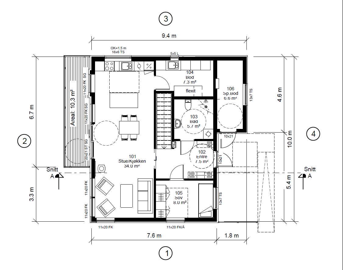
Med boligserien Fedje er det først og fremst tenkt arealeffektivt og fleksibelt. Disse husene passer fint for førstegangsetablerere.
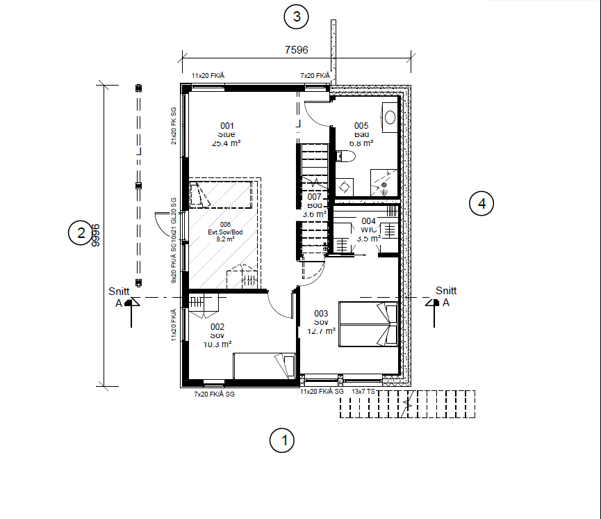
Hovedplanet er lagt til 1. etasje slik at du får fin utsikt fra stue og kjøkken. I etasjen under er de fleste soverommene plassert. Stuen i underetasjen har direkte utgang til terreng.
Kjøkken og stue danner et allrom med utgang til balkong. Dette er et kompakt og arealeffektivt hus med mulighet for fire soverom, i tillegg til to stuer og to bad. Foreldresoverommet har egen stor garderobe. Trappens plassering midt i huset binder de to etasjene sammen på en fin måte, samtidig som det gir mulighet for samtidig bruk av begge stuer uten at de sjeneres av hverandre.
Inngangspartiet er overbygd, innbydende og med en sportsbod i bakkant. Store, flotte vindusparti og variasjon av liggende og stående kledning er med på å gi bygget sitt eget særpreg.
Boligen passer godt til både små og litt større familier.
FRITIDSAKTIVITETER
På Ballstad knytter mye av aktiviteten seg til idrettslaget Ballstad UIL, Ballstad Gym og Turn, samt friluftsliv, jakt og fiske.
Ballstad har flotte utendørsanlegg i form av kunstgressbane og ballbinge. Populære turstier for store og små, alt fra toppturer til Skottinden, fisketurer i ferskvann eller gåturer til Kyllingdalen.
Areal BRA
BRA 1.etg = 76,2 m2
BRA U.etg = 66,6 m2.
Total = 142,8 m2
BYA = 104 m2.
Tomt / Tomteareal.
Areal tomt = 1058 m2
Eksakt tomteareal vil foreligge etter endelig oppmåling utført av kommunen. Ved endelig oppmåling vil arealet kunne avvike noe.
Uteområdet blir opparbeidet med stedlige masser og grusede parkerings- og trafikkarealer.
Såing av plen og annen beplantning er kjøpers ansvar.
Kjøper har mulighet til å få utført endrings- og tilleggsarbeider etter avtale avhengig av når i byggeperioden kjøper skriver avtale om kjøp av boligen.
Kjøper kan i dette prosjektet endre innvendige overflater (farger, veggoverflater, gulvoverflater), Kjøkkeninnredning, ekstra soverom i underetasjen, elektro (downlights, utforming av elektroinstallasjoner og plassering av stikkontakter.
Pris pr. 20.08.2022.
Det vil bli tilrettelagt for fiber. Det må påregnes tilknytningsgebyr til fiberleverandør.
Inneklimasentral med integrerte funksjoner for balansert ventilasjon, tappevann og varme til boligen med vannbåren varme.
Den sikrer et sundt inneklima, rikelig med varmtvann og varme på en svært energieffektiv måte.
Boligen tilknyttes kommunalt vann via private stikkledninger fordelt på fire boliger.
Avløpet tilkobles privat minirenseanlegg fra Biovac, service utføres av lokal entreprenør for Biovac. Det opprettes en velforening for fordeling av drift og vedlikeholdskostnader ifm minirenseanlegget fordelt på fire boliger.
BRA 1.etg = 76,2 m2 BRA U.etg = 66,6 m2 Total: = 142,8 BYA = 104.
Kommunenummer: 1860
Gårdsnummer: 11
Bruksnummer: 57




Gjerneshaugan 21Ballstad