Hopp til hovedinnhold
1 / 0
Arefjord Strandpark Sotra - Firemannsbolig F11C

Unik beliggenhet ved vannet på Brattholmen/ Sotra

Nygårdsvegen 5350 Brattholmen
Pris fra
6 980 000 kr
Omkostninger
16 910 kr
Totalpris
6 996 910 kr
Marianne Gimmestad Sande
Administrasjon
Fredrick Gimmestad Sande
Daglig leder
Prosjektet bygges av

Vest Byggteknikk AS

Vi er din pålitelige partner uansett hvilke håndverktjenester du ønsker utført. Trenger du en tømrer i Øygarden og områdene rundt? Vi står klare for deg!

Gå til forhandlersiden
4-Mannsbolig- Ditt perfekte kompromiss – romslig, fleksibelt og lettstelt. Klar for et enklere liv, men ikke leilighet i blokk? Da er våre leiligheter i firemannsboligene perfekt for deg! Ønsker du deg en lettstelt bolig uten å måtte inngå kompromisser med plass og komfort? Firemannsboligene i Arefjord Strandpark er det perfekte valget for deg som vil nedskalere uten å føle deg innestengt.

Prosjektfase

Ferdig
Planlegging
2024
Salgsstart
2024
Byggestart
2026/27
Overtakelse

Nøkkelinfo

Boligtype

Leilighet

Eierform

Selveier

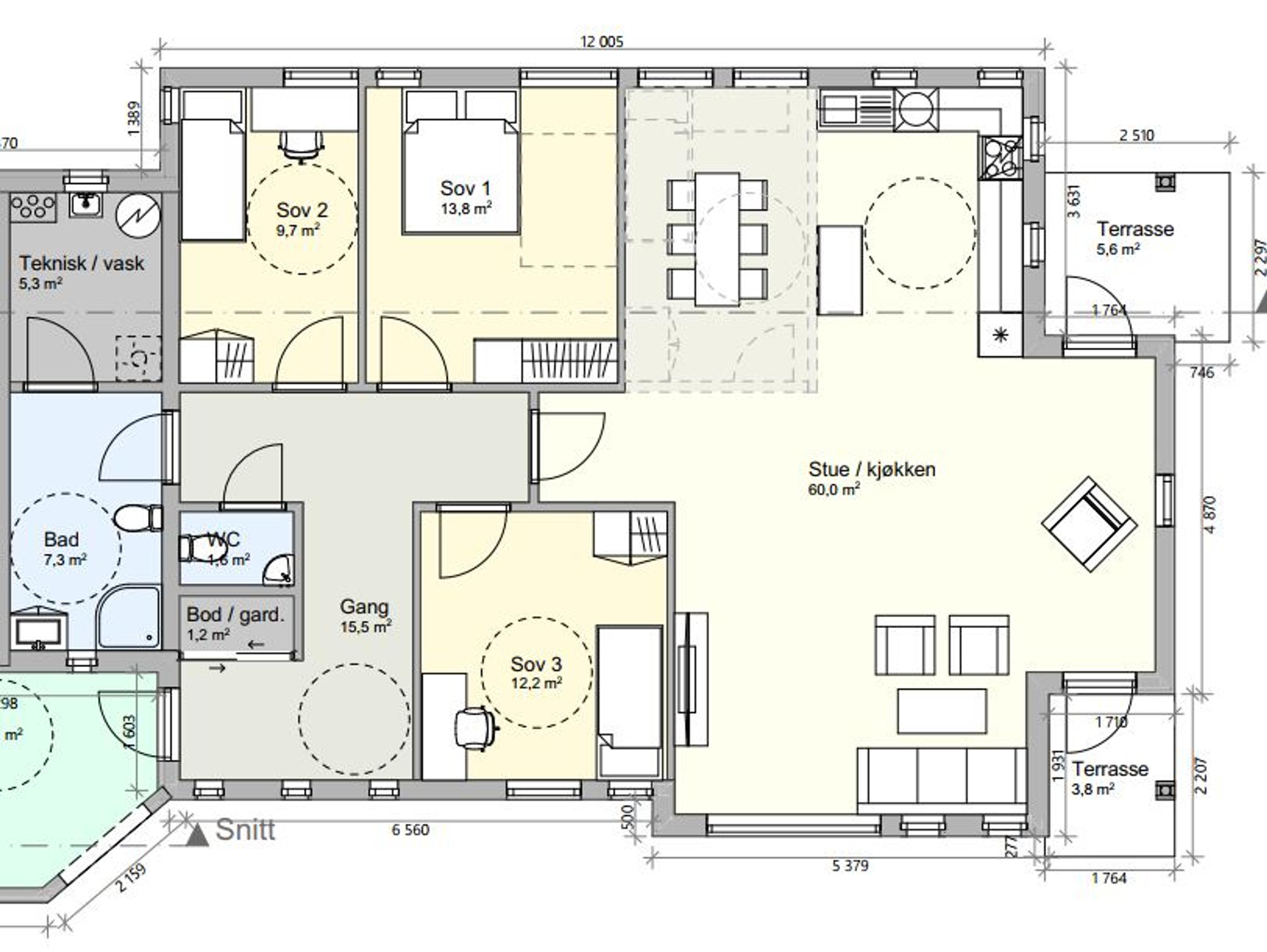
Soverom

3

Bad

1

Etasjer

1

Bruksareal

129 m² (BRA)

Internt bruksareal

129 m² (BRA-i)

Fasiliteter

  • Lademulighet
  • Balkong/Terrasse
  • Strandlinje
  • Utsikt
  • Bilvei frem
  • Garasje/P-plass
  • Peis/Ildsted
  • Turterreng
  • Fiskemulighet
  • Innlagt strøm
  • Innlagt vann
  • Offentlig vann/kloakk

Opplev den perfekte kombinasjonen av komfort og natur med vår eiendom som ligger i umiddelbar nærhet til vannet. Nyt rolige omgivelser og en egen uteplass på bakkeplan, ideell for avslapning og sosiale sammenkomster. Eiendommen tilbyr lett tilkomst med trappefri adkomst, noe som gjør den tilgjengelig for alle. Med fleksible romløsninger kan du tilpasse boligen etter dine behov. Dette er et hjem som gir deg muligheten til å leve i harmoni med naturen, samtidig som du har alle bekvemmeligheter innen rekkevidde. Perfekt for deg som ønsker en stressfri hverdag i naturskjønne omgivelser.

Om nabolaget

Velkommen til Brattholmen

Arefjord Strandpark ligger i et etablert og stille nabolag, med trygg skolevei og minimalt med biltrafikk. Her er det kort vei til både lekeplass, barnehage og Brattholmen skole – som får nytt uteområde i 2025. Dette gjør Arefjord Strandpark til et perfekt valg for barnefamilier.

Boligene

Aktiviteter og kvaliteter i nærområdet

Brattholmen er kjent for sine mange aktiviteter som passer for barn i skolealder. Området har flere parker og lekeplasser hvor barna kan leke og utforske. I tillegg er det flere idrettslag i området som tilbyr ulike sportslige aktiviteter, som fotball, håndball og turn. For de som er interessert i kultur, er det også et lokalt teater og musikkskole.

Fasiliteter i nærheten

Brattholmen har flere dagligvarebutikker i nærheten, noe som gjør det enkelt for familier å handle det de trenger. Det er også flere skoler og barnehager i området, Brattholmen og Danielsen er de nærmeste, samt Liljavatnet Barnehage for de minste barna.

Idrettslag og foreninger

Brattholmen/ Straume har et aktivt idrettsmiljø med flere idrettslag. Disse tilbyr ulike sportslige aktiviteter, som fotball, håndball og turn. Sotra Arena og Idrettsparken er i umiddelbar nærhet. Det er også flere kulturforeninger i området som arrangerer ulike aktiviteter og arrangementer gjennom året.

Hele kommunen

Hvis du ønsker å utforske mer av området rundt Brattholmen, er det mye å se og gjøre i hele kommunen. Det er flere naturområder hvor du kan gå turer, og det er også flere museer og kulturelle severdigheter. Uansett hva du er interessert i, er det noe for alle i denne kommunen.

Brattholmen er et flott sted for barnefamilier, med et bredt spekter av aktiviteter og fasiliteter. Med sin nærhet til naturen og et aktivt idretts- og kulturliv, er det et ideelt sted for barn i skolealder å vokse opp.

Brattholmen natur og uteområde

Plantegninger

Leveransebeskrivelse

Andre enheter til salgs i Arefjord Strandpark Sotra

Firemannsbolig F6B311131 7 700 000 kr
Firemannsbolig F7C311129 7 550 000 kr
Firemannsbolig F8D311131 7 550 000 kr
Firemannsbolig F9A311128 7 180 000 kr
Firemannsbolig F11C311129 6 980 000 kr
Firemannsbolig F10B311131 7 700 000 kr
Firemannsbolig F12D311131 7 500 000 kr

Meld interesse

Felter markert med * må fylles ut.

Din kontaktinformasjon

+47

Ved å sende inn skjema opprettes det en brukerprofil på systemhus.no, og dine opplysninger lagres i vår digitale løsning. Utfyllende informasjon om behandlingen og hvordan du kan slette din profil finner du i vår personvernerklæring. Systemhus vil sende deg nyhetsbrev basert på ditt kundeforhold hos oss. Dersom du ønsker å reservere deg mot nyhetsbrev, gjør du det enkelt ved å krysse av nedenfor.