Lofotr Bygg & Anlegg AS
Lofotr Bygg & Anlegg er Systemhusforhandler i Vest-Lofoten. Bedriften har forretningsområde innen utvikling og bygging av småhus, eneboliger, boliger med to eller flere leiligheter.
Gå til forhandlersidenLofotr Bygg & Anlegg er Systemhusforhandler i Vest-Lofoten. Bedriften har forretningsområde innen utvikling og bygging av småhus, eneboliger, boliger med to eller flere leiligheter.
Gå til forhandlersidenBallstad - Sentral beliggenhet med kort vei til barne- og ungdomsskole.
På Gjerneshaugan har vi et funkishus med skandinavisk arkitektur under oppføring for salg.
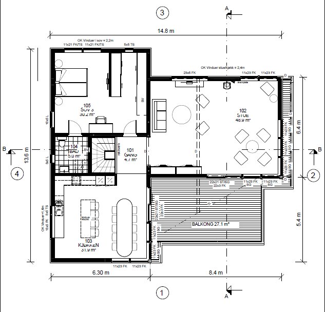
Huset har en praktfull stue med masse lys, god utsikt og god plass til flere sittesoner. Dette gir huset stor fleksibilitet og mange møbleringsalternativer. Balkongen mot fronten av huset er romslig, og 2 store skyvedører minimerer overgangen mellom ute og inne på fine sommerdager. Balkongen er også delvis overbygd, slik at den skjermer for vær og vind.
Egen Suite.
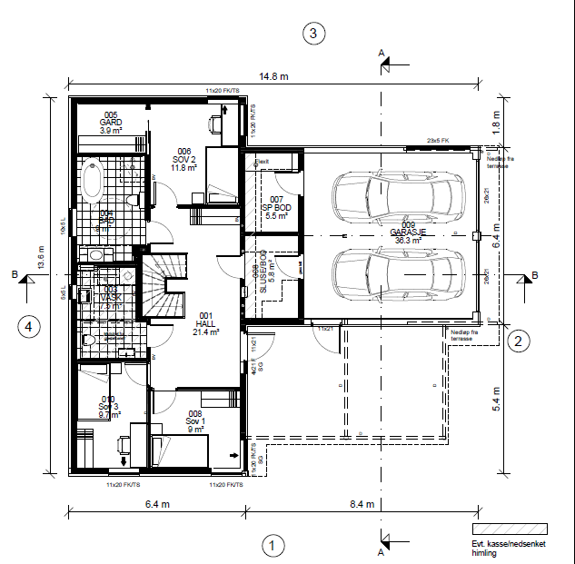
Boligen har fire soverom, tre i 1. etasjen og et i 2. etasjen. Master bedroom i hovedetasjen er på over 30m2 med tilhørende bad og kan innredes som en egen suite. Her er det plass til oppbevaring, lesekrok eller arbeidsplass
Huset.
Husets andre etasje består av en praktfull stue med masse lys, god utsikt. Vindu med 2,3m høyde er høyere en romhøyden i de aller fleste boliger. Det er laget en adskilt spisesone og stuesone, som er ideell for høytidsdager og middagsselskap. Det er også gode uteplasser direkte tilknyttet stue og kjøkken.
FRITIDSAKTIVITETER
På Ballstad knytter mye av aktiviteten seg til idrettslaget Ballstad UIL, Ballstad Gym og Turn, samt friluftsliv, jakt og fiske.
Ballstad har flotte utendørsanlegg i form av kunstgressbane og ballbinge. Populære turstier for store og små, alt fra toppturer til Skottinden, fisketurer i ferskvann eller gåturer til Kyllingdalen.
Areal BRA.
2.etg = 128.9
1.etg = 82.8
Garasje = 36.3
Sport = 5.5
Tomt / tomteareal.
Areal tomt = 975 m2
Uteområdet blir opparbeidet med stedlige masser og grusede parkerings- og trafikkarealer.
Såing av plen og annen beplantning er kjøpers ansvar
Kjøper har mulighet til å få utført endrings- og tilleggsarbeider etter avtale avhengig av når i byggeperioden kjøper skriver avtale om kjøp av boligen.
Kjøper kan i dette prosjektet endre innvendige overflater (farger, veggoverflater, gulvoverflater), Kjøkkeninnredning, ekstra soverom i underetasjen, elektro (downlights, utforming av elektroinstallasjoner og plassering av stikkontakter.
Det vil bli tilrettelagt for fiber. Det må påregnes tilknytningsgebyr til fiberleverandør.
Inneklimasentral med integrerte funksjoner for balansert ventilasjon, tappevann og varme til boligen med vannbåren varme.
Den sikrer et sundt inneklima, rikelig med varmtvann og varme på en svært energieffektiv måte.
Boligen tilknyttes kommunalt vann via private stikkledninger fordelt på fire boliger.
Avløpet tilkobles privat minirenseanlegg fra Biovac, service utføres av lokal entreprenør for Biovac. Det opprettes en velforening for fordeling av drift og vedlikeholdskostnader ifm minirenseanlegget fordelt på fire boliger.
Huset har en praktfull stue med mye lys, god utsikt og god plass til flere sittesoner. Dette gir huset stor fleksibilitet og mange møbleringsalternativer. Balkongen mot fronten av huset er romslig, og 2 store skyvedører minimerer overgangen mellom ute og inne på fine sommerdager
Kommunenummer: 1860
Gårdsnummer: 11
Bruksnummer: 180



Gjerneshaugan 6Ballstad