I et hyggelig villastrøk i Kvalsvik skal vi bygge et råstilig funkishus med god planløsning. Eneboligen er 170 m2 BRA i tillegg til garasje med takterrasse over med utsikt utover havet!
Strindavegen 5 - Det perfekte familiehjem
I et hyggelig villastrøk i Kvalsvik, med adresse Strindavegen 5, skal vi bygge et råstilig funkishus med god planløsning. Eneboligene er 170 m2 BRA i tillegg til garasje med takterrasse over. På tomten er det også mulig å bygge ytterligere en større garsje. Standarden på leveransen er bra med valg mellom 3 unike interiørstiler som utgangspunkt. Flere produkter og leveranser som normalt er tilvalg hos andre utbyggere er standard og med i leveransen hos oss. På den store tomten ligger man usjenert til med friområde mot sør og delvis mot vest. Gode solforhold med sol fra formiddag til langt ut på kvelden. Fra 2. etasje får man flott utsikt mot havet i vest. I tillegg ser vi for oss at det er mulig å bygge en liten platting nesten helt øverst på fjellet i bakkant. Tenk den utsikten! Og ikke minst hvor fint der er å sitte der å nyte et godt glass mens man ser på den flotteste solnedgangen i havet! Fra denne takterrassen kan du lage trapp ned til hagearealet.
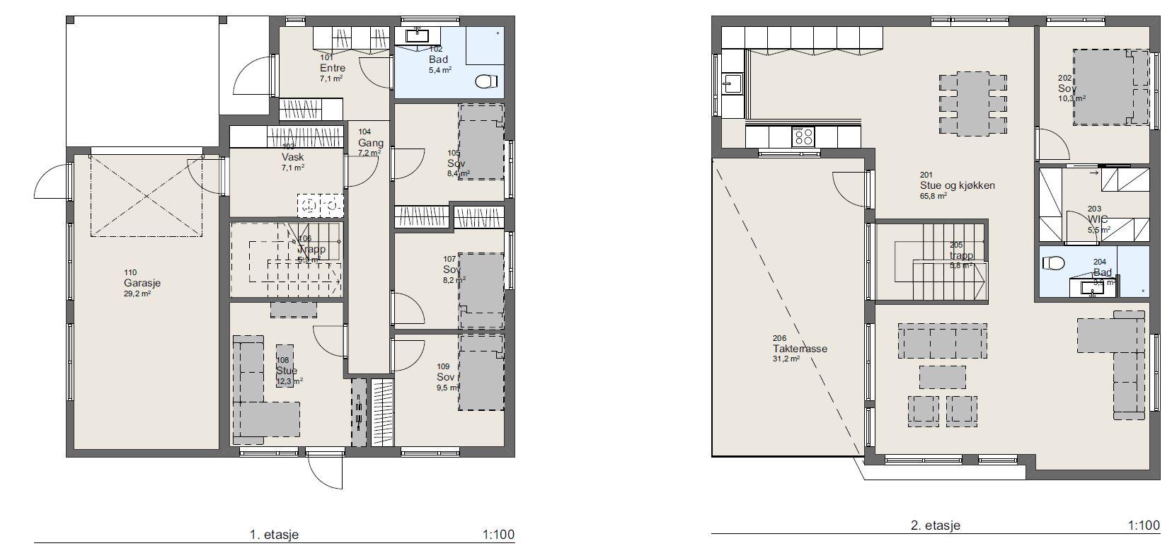
På tomten blir det opparbeidet stort gårdstun med god snuplass, fremtidig muligheter for ytterligere en større garasje, og garasje i forbindelse med huset. Fra gårdstunet er det innbydende, overbygget, inngangsparti rett ved garasje. I husets første etasje finner du 3 soverom, stue, bad og vaskerom med bi-inngang fra garasje. Ut fra stue kommer du ut på uteoppholdsarealet på bakkeplan, med terrasse som er sørvent og stort skjermet hageareal. Følger du trappen opp kommer du til stue og kjøkken med fantastisk utsikt ut mot havet i vest. Kjøkkenet med lekker innredning fra HTH. I 2. etasje er hovedsoverom med eget walk-in-garderobe og eget bad. Ut i fra stue og kjøkken er det stor takterrasse over garasje med helt rå utsikt mot havet. Fra denne takterrassen kan du lage trapp ned til hagearealet.

1.etasje: Overbygget inngangsparti, carport, hall/entré, bi-inngang med vaskerom, bad, stue, 3 soverom og bod under trapp.
2.etasje: Stue, kjøkken, hovedsoverom med eget walk-in-closet og bad, takterrasse over garasje.
Veibeskrivelse:
Når du kjører inn på Kvalsvikvegen ved Gard Senter følges denne helt til veien svinger til høyre (mot øst). Følg svingen og når du har halvveis opp i bakken svinger du til høyre hvor det er skiltet «Strindavegen». Når du kjører inn på Strindavegen er tomten rett fram.
Komplett interiørstil
Inkludert i prisen kan du velge den komplette interiørpakken du liker best!
Hvordan ønsker du at ditt nye hjem skal se ut? Du ønsker kanskje ikke å bruke lang tid, ressurser og fortvilelse på å finne din stil? Vi har valgt å samarbeide med interiørdesigner for å gjøre det lettere for deg å få en rød trå i ditt nye hjem. Stilene som er presentert her kan også brukes som inspirasjon/utgangspunkt. Du kan justere og ta utgangspunkt i den stilen du liker best og gjøre den om til din .
Dine fordeler:
•Stilig interiør
•Gjennomgående rød trå i interiøret
•Mindre tid på å finne stilen til ditt nye hjem
•Mindre tid på tilpasninger og tilvalg
•Full kontroll på økonomi og totalprisen
•Enklere hjelp til tilpasset kjøpshjelp av sofaer, border, stoler, bilder etc.
•Rimeligere totalpris, sammensatt av Hus28 og Moderne Stil, sammen med våre leverandører.
Hva interiørpakkene inneholder:
•Gulv, kjøkken, baderomsinnredning, fliser, veggfarger, Tapwell blandebatterier, takdusj, trapp, innerdører og lysbrytere/stikkontakter som er oppgradert og tilpasset stilen.
•Lys-spots (grunnpakke) som er tilpasset stilen

Stil 1: Warm minimalism
Warm minimalism inneholder farger med nyanser fra havet på veggene med en østlig rødfarge som brekker det av. Det er en stram stil med rene og stilfulle linjer. Innredningen og detaljene går i svarte farger. Gulv med lyse og lette fargenyanser. Warm minimalism inneholder farger med nyanser fra havet på veggene med en østlig rødfarge som brekker det av. Det er en stram stil med rene og stilfulle linjer. Innredningen og detaljene går i svarte farger. Gulv med lyse og lette fargenyanser.

Stil 2: Back to nature
Lyse, lune og varme farger på vegger sammen med en dempet grønntone. Dette fremstår som en lys stil med mange materialer og detaljer med inspirasjon fra naturen. Denne stilen er den som er nærmest det klassiske skandinaviske. Kombinasjonen av de lyse fargene, de lyse trestrukturene, ulike steinprodukter gir en moderne og lys atmosfære som innbyder til samvær og hygge.

Stil 3: Modern luxury
Dempede farger i beige sammen med en dyp grønnfarge på vegger. Sammen med mørke farger på innredninger og fliser, mørke treoverflater og detaljer i messing gir dette et luksuriøs og ultramoderne uttrykk. Denne stilen oser harmoni og eksklusivitet – enkel eleganse.
Innredningsfrihet
Med innredningsfrihet står du fritt til å velge den leverandøren på overflater som du selv ønsker! Dette gjelder for gulv, maling, baderoms-, garderobe- og kjøkkeninnredninger. Fordelene av innredningsfrihet er at du kan velge din leverandør ut i fra at du vet hvilke arbeid de har gjort før, at de har tilbudskampanjer eller at du har forhørt deg med flere leverandører om pris etc.
Vårt arbeid stopper med gips og flisearbeider. Det vil si at du selv må stå for utførelsen eller engasjere noen som kan utføre resten av arbeidene, i tillegg til å byggelede gjenstående arbeid.
Vi har med i våre leveranser tomt, arkitekt, graving, betongentreprenør, tømrer frem til gips, skjult elektro og rør, flisearbeider, prosjektering, søknad og 3. partskontroller. Da mener vi at den groveste og tyngste jobben er gjort – og alt er klappet og klart for at du har den «kjekke» jobben igjen – Interiør og overflater!
Priser
Pris komplett interiør: 7.950.000,-
Pris innredningsfrihet: 6.890.000,-